買う
物件検索
【ワンスタ】新築分譲住宅 助信町 4LDK+ウォークインクローゼット 2,980万円
おすすめポイント
【ワンスタ助信B】遠鉄八幡駅徒歩8分!P2台!設備充実・最寄りのスーパー徒歩3分!
|
物件種目 |
売戸建住宅 |
||
|---|---|---|---|
|
間取りタイプ |
4LDK |
||
|
価格 |
2,980万円 |
||
|
物件所在地 |
浜松市中央区助信町 |
||
|
交通 |
遠鉄八幡駅徒歩8分 |
||
| JR浜松駅徒歩26分 | |||
|
土地面積 |
104.46㎡ / 31.59坪 |
私道面積 |
|
|
構造・規模 |
木造ガリバリュウム2階建て |
||
| 建物面積 |
100.39㎡ |
||
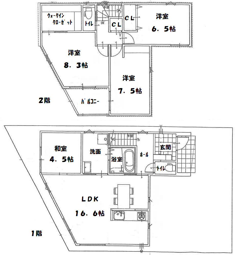
| 間取り内訳 |
1階 LDK16.6帖、和室4.5帖・2階 洋室6.5帖、7.5帖、8.3帖、ウォークインクローゼット |
||
|
土地権利 |
所有権 |
地目 |
宅地 |
|
都市計画 |
市街化区域 |
用途地域 |
商業地域 |
|
建ぺい率 |
80% |
容積率 |
400% |
|
築年数 |
2024年 |
駐車場 |
2台あり |
|
現況 |
空家 |
引渡日 |
即可能 |
|
建築確認番号 |
第KS123-0410-54660号 |
||
|
接道状況 |
東側6.6m公道に8m接する。 |
||
|
設備 |
カウンターシステムキッチン、食器洗浄機、浴室暖房、浴室乾燥、追い焚き、シャンプードレッサー、ウォシュレット(トイレ)2ヶ所、モニター付きインターホン |
||
|
その他 |
(学校)曳馬小学校 徒歩12分 |
||