借りる(賃貸)
マンション・アパート
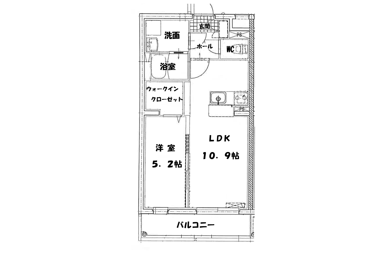
新築マンション 青屋町 1LDK 7.6~7.9万円
おすすめポイント
JR天竜川駅徒歩1分!ペット飼育可能・インターネット無料!2026年3月完成予定!
|
物件種目 |
貸マンション |
|||
|---|---|---|---|---|
|
間取りタイプ |
1LDK |
|||
|
賃貸条件 |
賃料 7.6~7.9万円 |
|||
|
礼金 1 ヶ月 敷金 なし 保証金 66,000 円 |
||||
|
物件所在地 |
浜松市中央区青屋町 |
|||
|
交通 |
JR天竜川駅徒歩約1分 |
|||
| 遠鉄バス河合楽器バス停徒歩2分 | ||||
| 建物 |
建物名 |
LegrandⅡ |
||
|
構造・規模 |
鉄筋コンクリート造4階建 |
|||
|
使用部分面積 |
40.37m² |
|||
|
間取り内訳 |
LDK10.9帖 洋室5.2帖 |
|||
|
築年数 |
2025年 |
契約期間 |
2年 |
|
|
管理費等 |
4,000円 |
|||
|
駐車場 |
4,400円 |
|||
|
現況 |
建設中 |
入居日 |
2026年3月中旬予定 |
|
|
設備 |
||||
|
保険等 |
加入要 |
|||
|
その他 |
友の会(火災保険とかけつけサービス含む)月額 単身税込2530円、2名以上税込3190円、町内会費月額400円、鍵交換費用27,500円(契約時のみ) |
|||