借りる(賃貸)
マンション・アパート
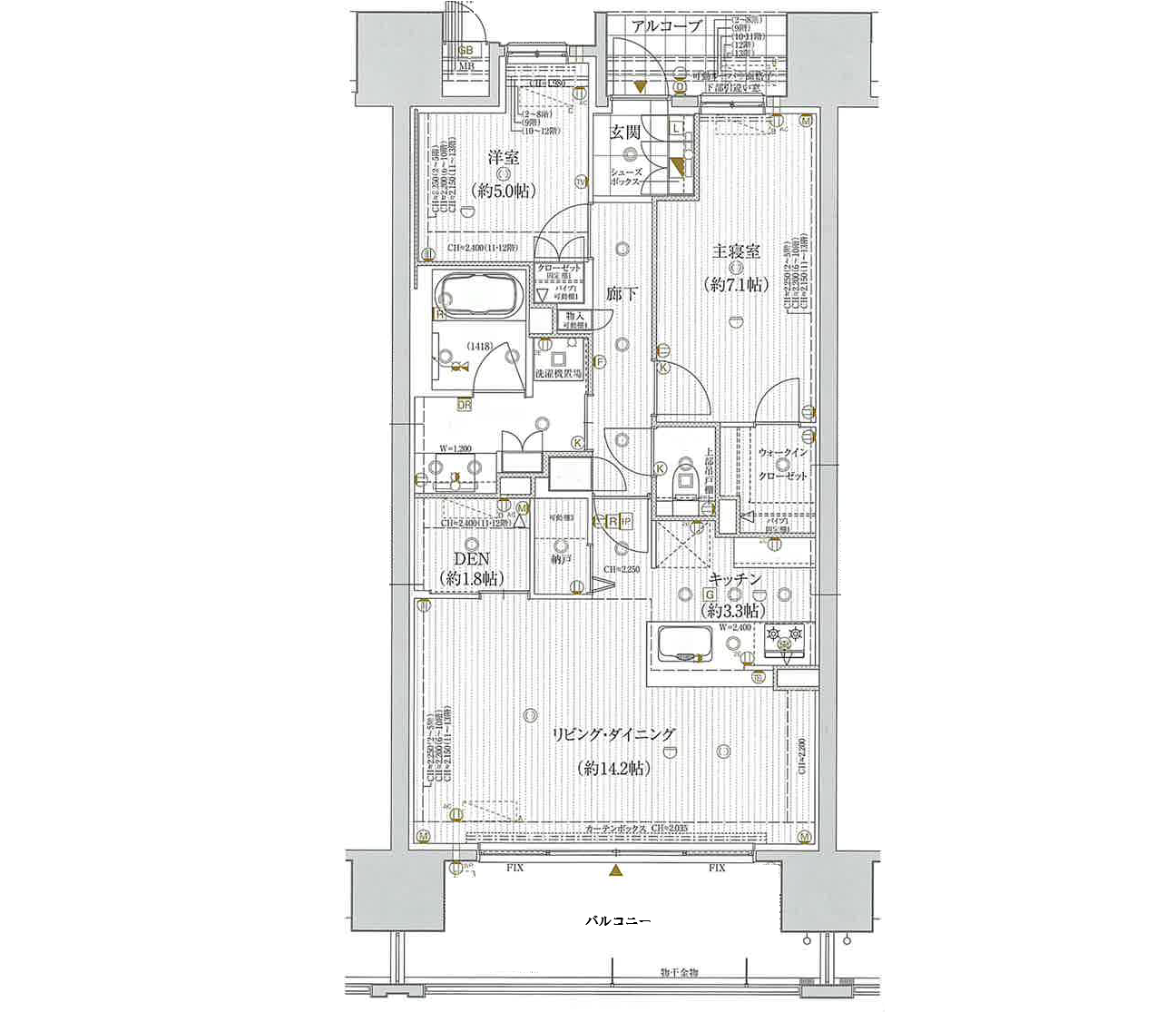
分譲マンション 利町 20万円 2LDK+DEN(書斎)+納戸+WIC
おすすめポイント
築2年半の分譲マンション!ワンちゃん猫ちゃん飼育可能!視界良好!JR浜松駅と遠鉄第一通り駅徒歩圏内!コンセルジュによるフロントサービスも充実!
|
物件種目 |
貸マンション |
|||
|---|---|---|---|---|
|
間取りタイプ |
2LDK |
|||
|
賃貸条件 |
賃料 20万円 |
|||
|
礼金 1 ヶ月 敷金 2 ヶ月 保証金 なし |
||||
|
物件所在地 |
浜松市中央区利町306-30 |
|||
|
交通 |
遠州鉄道 第一通り駅徒歩約11分 |
|||
| JR浜松駅 徒歩約14分 | ||||
| 建物 |
建物名 |
ル・シェモア利町 |
||
|
構造・規模 |
鉄筋コンクリート造14階建て8階部分 |
|||
|
使用部分面積 |
73.2m² |
|||
|
間取り内訳 |
LDK17・5帖、洋室5帖、洋室7.1帖、DEN1.8帖 |
|||
|
築年数 |
2023年 |
契約期間 |
2年 |
|
|
管理費等 |
0円 |
|||
|
駐車場 |
1台11,000円 |
|||
|
現況 |
入居中 |
入居日 |
2026年4月初め(多少相談可能) |
|
|
設備 |
【お部屋】システム・カウンターキッチン、食器洗浄乾燥機、浄水器(カートリッジ別)、IHクッキングヒーター、ディスポンサー、浴室暖房乾燥涼風、追い焚き付き浴室、シャンプードレッサー、ウォシュレット(タンクレストイレ)、モニター付きオートロック、モニター付きインターホン(駐車場の出庫予約機能付き)、全室フリーリング、セキュリティ(セコム)、非接触キー(アプリで遠隔操作可能)、BS、CS、エアコン3台、照明器具、カーテン、ネット無料(コミュファ光)、火災報知器、都市ガス |
|||
|
保険等 |
加入要 |
|||
|
その他 |
小型犬・猫飼育可能(敷金1ヶ月プラス) |
|||