借りる(賃貸)
事業用物件
オフィス 中区元城町 約25坪 税込21.4万円

おすすめポイント
浜松市役所目の前!築15年で2018年に大改装もし、きれいなオフィスビルです。諸条件につきましては頑張って交渉して来ます!キャンペーン期間中につき仲介手数料無料!!
物件種目 |
貸事務所 |
|||
---|---|---|---|---|
賃貸条件 |
賃料 税込214,280円 |
|||
礼金 なし 敷金 6 ヶ月 保証金 なし |
||||
物件所在地 |
浜松市中区元城町216-4 |
|||
交通 |
遠州鉄道・遠州病院駅徒歩9分 |
|||
JR浜松駅徒歩15分 | ||||
建物 |
建物名 |
ノーススタービル |
||
構造・規模 |
鉄骨造10階建て |
|||
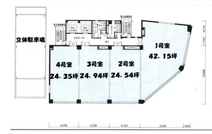
使用部分面積 |
24.35坪 |
|||
間取り内訳 |
||||
築年数 |
2007年 |
契約期間 |
2年 |
|
管理費等 |
賃料に含まれます |
|||
土地面積 |
用途地域 |
|||
駐車場 |
1台15,000円(機械式の為車両のサイズ制限あります) |
|||
現況 |
使用中 |
引渡日 |
2023年8月1日 |
|
接道状況 (角地・間口) |
||||
設備 |
個別空調、エレベーター2基、OAフロア、セキュリティ(機械警備)、天井高2.7m、社員の方は24時間使用・入退室可能、エントランスにて受付常駐、男女別トイレ(各階にあり)、共用給湯室(各階にあり) |
|||
その他 |